Ein neues Gartenparadies entsteht: Startschuss am Herrenacker

Ein neues Gartenparadies entsteht: Startschuss am Herrenacker
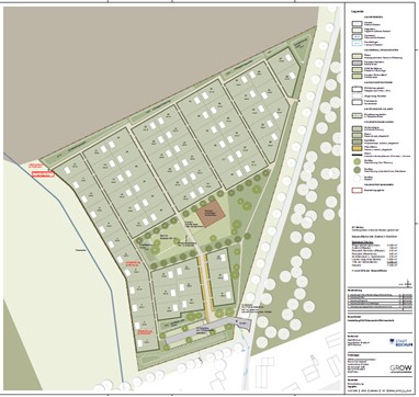
Entwurf der neuen Kleingartenanlage "Am Herrenacker"

In Bochum wächst etwas Neues: Anfang März 2026 begannen die Erdarbeiten für die neue Kleingartenanlage am Herrenacker in Bochum-Wattenscheid-Westenfeld. Mit dem Start der Bauarbeiten nimmt ein zukunftsweisendes Projekt Fahrt auf, das Natur, Gemeinschaft und Nachhaltigkeit miteinander verbindet. Die Fertigstellung ist für den Jahreswechsel 2026/2027 geplant.

Notwendiger Abschied – geplanter Neubeginn

Die Umsiedlung war notwendig, da die bisherige Anlage „Thiemannshof“ an der Essener Straße aufgrund von Schadstoffen nicht weiter genutzt werden konnte. Das Gelände der ehemaligen Zeche Engelsburg schließt eine dauerhafte kleingärtnerische Nutzung aus und soll perspektivisch einem ökologisch-nachhaltigen Gewerbegebiet weichen. Mit dem Neubau am Herrenacker entsteht nun ein moderner, sicherer und naturnaher Ort für alle Gartenfreundinnen und Gartenfreunde.

67 neue Parzellen und eine „Grüne Mitte“

Auf einer rund 34.000 Quadratmeter großen Fläche, die zuvor landwirtschaftlich genutzt wurde, entstehen 67 Parzellen mit jeweils rund 300 Quadratmetern Nutzfläche. Herzstück der Anlage ist die „Grüne Mitte“ mit einem öffentlich zugänglichen Spielplatz, einer Streuobstwiese und einer Fläche für ein zukünftiges Vereinshaus. Die Erschließung erfolgt über die Straße Herrenacker, die im Zuge der Baumaßnahme zu einem verkehrsberuhigten Bereich umgebaut wird.

Naturnah, nachhaltig und barrierefrei

Die neue Anlage setzt konsequent auf heimische Bäume und Sträucher, während Hecken die Parzellen einrahmen und zusätzliche Pflanzungen entlang der Wege sowie eine geplante Waldaufforstung im Westen den grünen Charakter des Standorts stärken. Alle Hauptwege und Gemeinschaftsflächen sind barrierefrei zugänglich, und der inklusive Spielplatz ist rollstuhlbefahrbar gestaltet, sodass Kinder mit und ohne Beeinträchtigung gemeinsam spielen können. Die Baukosten belaufen sich auf rund 2,08 Millionen Euro. Mit dieser Investition schafft die Stadt Bochum nicht nur Ersatz, sondern eine zukunftsfähige und nachhaltige Anlage mit hoher Aufenthaltsqualität.

Gemeinsam Gärten gestalten – Ihr neuer Verein

Mit der Fertigstellung der Kleingartenanlage am Herrenacker entsteht auch ein neuer Kleingartenverein – ein Ort für Gemeinschaft, Naturerlebnis und gemeinsames Gärtnern. Die Gründung des Vereins erfolgt eigenständig durch die künftigen Pächterinnen und Pächter aus dem Kreis der Interessierten. Der Stadtverband steht dabei beratend und unterstützend zur Seite, damit der Start ins Vereinsleben reibungslos gelingt. Aktuell wird zudem die Gründung einer Genossenschaft geprüft, über die der Bau der Gartenlauben gemeinschaftlich organisiert und finanziert werden soll. Besonders nachhaltig: die Dächer der Lauben müssen begrünt werden und leisten so einen zusätzlichen Beitrag zum Klima, zur Umwelt und zum grünen Gesamterscheinungsbild der Anlage.

So entsteht nicht nur ein Ort zum Gärtnern, sondern auch eine lebendige Gemeinschaft, die gemeinsam wächst und den Herrenacker zu einem echten Gartenparadies macht.

🌿 Wurzeln schlagen am Herrenacker – Jetzt Interesse vormerken 🌱

Wer Interesse an einer Parzelle und an der Mitwirkung im neuen Kleingartenverein hat, kann sich ab sofort unverbindlich vormerken lassen.

Jetzt Kontakt aufnehmen

zurück